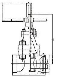
Z23鉆井高壓泥漿閘閥用于油礦鉆井泥漿循環系統設備,控制泥漿流通與關閉,連接形式為梯形螺紋或法蘭式,安裝快速方便,鋼性強,安全可靠,閥座與閘板密封效果好,開啟輕便。閥門兩端與管道連接密封,采用球面活動接觸與0型橡膠密封圈相結合的活動接頭,產品結構性能可靠,特別適用于管道兩端中心要求不高的場合。

| PN35(350) PN25(250) |
Z23x-325/500 A/B型 | PN35(350) PN25(250) |
|---|
| 公稱通徑 DN(mm) |
尺寸(mm) | 重量 (Kg) |
|||||||
|---|---|---|---|---|---|---|---|---|---|
| DN | L | L1 | Tr | SR | H | H1 | D0 | ||
| 50 | 47 | 240 | 30 | 120×6 | 40 | 364 | 312 | 440 | 60 |
| 65 | 57 | 260 | 30 | 130×6 | 40 | 403 | 330 | 480 | 75 |
| 80 | 70 | 280 | 35 | 150x6 | 60 | 495 | 41 1 | 500 | 90 |
| 100 | 92 | 320 | 45 | 180×8 | 74 | 543 | 443 | 500 | 110 |
高壓泥漿閘閥有非金屬密封和金屬密封兩種,主要用于油礦鉆井泥漿循環系統設備,控制泥漿流通與關閉,連接形式為梯形螺紋或法蘭式,安裝快速方便,鋼性強,安全可靠,閥座與閘板密封效果好,開啟輕便。閥門兩端與管道連接密封,采用球面活動接觸與0型橡膠密封圈相結合的活動接頭,產品結構性能可靠,特別適用于管道兩端中心要求不高的場合。
適用于鉆井過程中對泥漿混合物控制的閥——簡稱泥漿閥,屬于高壓閥門技術領域。該閥包括有進、出液端的閥體,閥體的進、出液端之間的閥座中裝有平板閘板,平板閘板的上端與閥桿銜接,所述閥桿與手輪通過螺紋副連接,其改進之處在于:閥座由包覆橡膠的兩圓環內骨架及支撐環構成通道,其水平截面呈長軸與液流方向一致的橢圓形,嵌裝在閥體進、出液端之間的盲孔中,包覆橡膠的兩圓環內骨架之間留有寬度小于平板閘板厚度的圓弧槽。由于橢圓形截面的閥座與閥體上的盲孔形成過盈配合,減少與閥體大面積過贏,因此產生了理想的密封效果,而閥座中的圓環內骨架則長期保持著閥座的基本形狀,使其具有足夠的使用壽命。
溫馨提示:
本文中所有文字、數據、圖片均只適用于參考。需要查看更多的Z23型鉆井高壓泥漿閘閥性能參數、結構尺寸參數、價格等詳情,或要求印刷樣本,請聯系我們。
主營產品:氣動調節閥 - 電動調節閥 - 自力式調節閥
版版權所有 © 上海大田閥門管道工程有限公司
地址:上海市浦東新區川宏路528號宏圖大樓5樓
