Z43F 導流孔平行式閘閥,閘閥通常適用于不需要經常啟閉,而且保持閘板全開或全閉的工況。不適用于作為調節或節流使用。閘閥是作為截止介質使用,在全開時整個流通直通,此時介質運行的壓力損失最小。對于高速流動的介質,閘板在局部開啟狀況下可以引起閘門的振動,而振動又可能損傷閘板和閥座的密封面,而節流會使閘板遭受介質的沖蝕。從結構形式上,主要的區別是所采用的密封元件的形式。根據密封元件的形式,常常把閘閥分成幾種不同的類型,如:楔式閘閥 平行式閘閥 平行雙閘板閘閥 楔式雙閘板閘等。最常用的形式是楔式閘閥和平行式閘閥。

Z43F導流孔平行式閘閥廣泛應用于各種石油、化工、液化氣、給排水、食品、制藥、發電、鍋爐蒸汽系統、礦產、城建、市政、等領域,以及居民日常生活中。
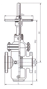
| Class | DN | in | 2 | 21/2 | 3 | 4 | 5 | 6 | 8 | 10 | 12 | 14 | 16 | 18 | 20 | 24 | 28 | 32 | 36 |
|---|---|---|---|---|---|---|---|---|---|---|---|---|---|---|---|---|---|---|---|
| mm | 50 | 65 | 80 | 100 | 125 | 150 | 200 | 250 | 300 | 350 | 400 | 450 | 500 | 600 | 700 | 800 | 900 | ||
| 150Lb | L | 178 | 190 | 203 | 220 | 254 | 267 | 292 | 330 | 356 | 381 | 406 | 432 | 457 | 508 | 610 | 660 | 711 | |
| H | 440 | 483 | 595 | 663 | 735 | 833 | 1072 | 1265 | 1433 | 1675 | 1857 | 2036 | 2247 | 2723 | 3092 | 3414 | 3870 | ||
| H1 | 133 | 145 | 180 | 210 | 288 | 298 | 377 | 461 | 530 | 620 | 692 | 765 | 850 | 1020 | 1150 | 1376 | 1520 | ||
| Class | DN | in | 2 | 21/2 | 3 | 4 | 5 | 6 | 8 | 10 | 12 | 14 | 16 | 18 | 20 | 24 | 28 | 32 | 36 |
| mm | 50 | 65 | 80 | 100 | 125 | 150 | 200 | 250 | 300 | 350 | 400 | 450 | 500 | 600 | 700 | 800 | 900 | ||
| 300Lb | L | 216 | 241 | 283 | 305 | 381 | 403 | 419 | 457 | 502 | 761 | 838 | 914 | 991 | 1143 | 1346 | 1524 | 1727 | |
| H | 440 | 483 | 595 | 663 | 735 | 833 | 1072 | 1265 | 1433 | 1675 | 1857 | 2036 | 2247 | 2723 | 3092 | 3414 | 3870 | ||
| H1 | 133 | 145 | 180 | 210 | 288 | 298 | 377 | 461 | 530 | 620 | 692 | 765 | 850 | 1020 | 1150 | 1376 | 1520 | ||
| Class | DN | in | 2 | 21/2 | 3 | 4 | 5 | 6 | 8 | 10 | 12 | 14 | 16 | 20 | 24 | 28 | 32 | 36 | |
| mm | 50 | 65 | 80 | 100 | 125 | 150 | 200 | 250 | 300 | 350 | 400 | 500 | 600 | 700 | 800 | 900 | |||
| 400Lb | L | 292 | 330 | 356 | 406 | 457 | 495 | 595 | 673 | 762 | 826 | 902 | 1054 | 1232 | 1397 | 1651 | 1880 | ||
| H | 440 | 483 | 595 | 663 | 735 | 835 | 1072 | 1265 | 1433 | 1675 | 1857 | 2247 | 2723 | 3092 | 3414 | 3870 | |||
| H1 | 138 | 150 | 185 | 215 | 270 | 300 | 385 | 470 | 540 | 630 | 705 | 885 | 1040 | 1170 | 1400 | 1545 | |||
| Class | DN | in | 2 | 21/2 | 3 | 4 | 5 | 6 | 8 | 10 | 12 | 14 | 16 | 20 | 24 | 28 | 32 | 36 | |
| mm | 50 | 65 | 80 | 100 | 125 | 150 | 200 | 250 | 300 | 350 | 400 | 500 | 600 | 700 | 800 | 900 | |||
| 600Lb | L | 292 | 330 | 356 | 432 | 508 | 550 | 660 | 787 | 838 | 889 | 991 | 1194 | 1397 | 1549 | 1778 | 2083 | ||
| H | 440 | 483 | 595 | 685 | 735 | 835 | 1075 | 1265 | 1435 | 1680 | 1857 | 2255 | 2723 | 3110 | 3430 | 3890 | |||
| H1 | 138 | 150 | 185 | 215 | 270 | 300 | 385 | 470 | 540 | 630 | 705 | 885 | 1040 | 1170 | 1400 | 1545 | |||
溫馨提示:
本文中所有文字、數據、圖片均只適用于參考。需要查看更多的Z43F導流孔平行式閘閥性能參數、結構尺寸參數、價格等詳情,或要求印刷樣本,請聯系我們。
主營產品:氣動調節閥 - 電動調節閥 - 自力式調節閥
版版權所有 © 上海大田閥門管道工程有限公司
地址:上海市浦東新區川宏路528號宏圖大樓5樓
